Home » Woonunit huren » Mobiele woonunit/slaapwagen 900
Mobiele woonunit/slaapwagen 900
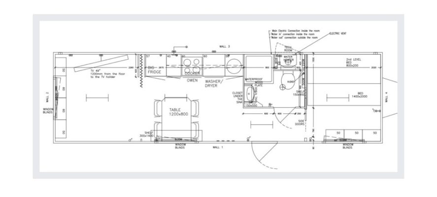
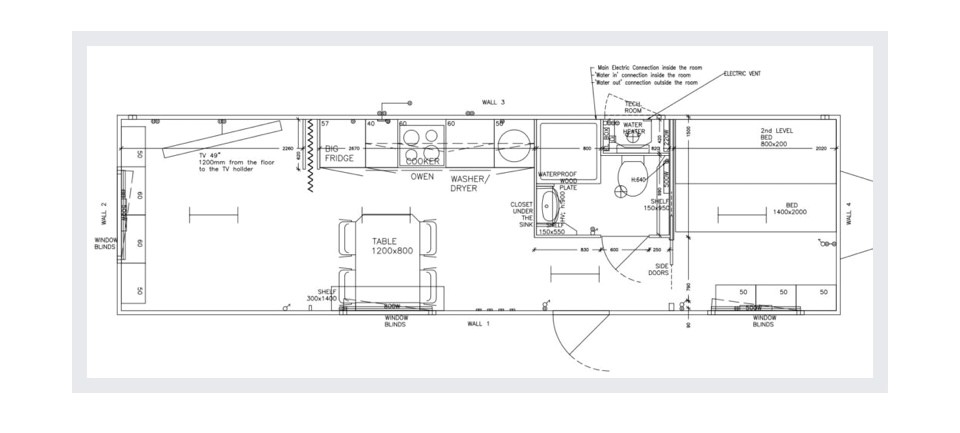
Heeft u een opdracht verder van huis? Huur dan een van onze mobiele woonunits, zodat uw werknemers comfortabel kunnen overnachten en niet uren in de file staan op weg naar huis. Bij een verbouwing of renovatie is deze slaapunit geschikt als tijdelijke woonruimte. Als uw bedrijf gebruik maakt van seizoensarbeiders, biedt u hen een comfortabel tijdelijk onderkomen tegen een prijstechnisch gunstig tarief. De woonunit/slaapwagen is ingericht voor max 5 personen.
De mobiele woonunit is ingericht met douche, toilet en wastafel. De unit is ook ideaal te gebruiken bij een langdurige verbouwing. In de keuken, die is uitgerust met een vierpits elektrische kookplaat, grote koel vries combi & spoelbak kan een complete maaltijd worden gekookt.
Onze mobiele woonunit/slaapwagen heeft de volgende afmetingen:
Breedte: 248 cm
Lengte: 900 cm
Hoogte: 315 cm
Onze woonunit/slaapunit is standaard uitgerust met:
● 1 aparte slaapkamer met stapelbed en kledingkast
● 2 persoons bed en 1 persoons bed erboven
● Douche
● WC boiler
● Toilet
● Kookplaat
● Vaatwasser
● Wasmachine
● Kastjes
● Oven
● Grote koel vries combi
● Schuifwand
● Woonkamer met hoekbank
● Grote TV
● Degelijk hang & sluitwerk
● Dubbel glas, geïsoleerde wanden en vloer
● Binnenverlichting
● Watertoevoer 3/4” en een 1” afvoer met slang van 12.5 meter
Gewicht mobiele woon-/slaapunit
Eigen gewicht: 3000 kg
Laadvermogen: n.v.t.
Aantal assen: 2
De huurkosten van onze woonunit/slaapwagen zijn:
Huur € 300,00 per week
Geen kosten bij schoon inleveren.
Eventuele schoonmaakkosten:
€ 250,00
Nacontrole:
€ 75,-
Transportkosten:
€ 1,20 per gereden km
Exclusief 6% verzekeringskosten.
Alle prijzen zijn exclusief BTW.
Deze woon-/slaapunit werkt op twee normale 230v stopcontacten.



















